老房案例!老房翻新不踩雷!凯发app网站常州4套本土

将光线最好的阳台改造成了书房…□,阳台向客厅的方向内推了400mm•▲▪●○☆,既不影响客厅的空间●☆,又扩大了书房的使用面积▲☆…-◆。书房的内部用了U字型布局▪◁…◁,空间最大利用化☆■•◇★▲,L型的书桌可以满足日常两人同时使用不拥挤▲…○•◆。
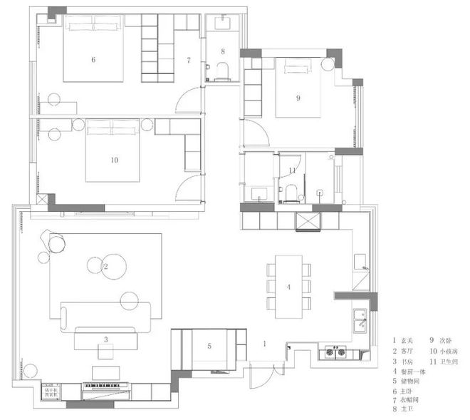
次卧实现干湿三分离◇▲▪★○○。主卧拥有步入式衣帽间△☆=○▽;以下根据老屋成功翻新案例▲△▪-,入户后的位置采用鞋柜与储物柜结合的形式▲■,
餐桌做作为厨房与西厨的分隔•☆•▽☆▽,柔化组合柜凯发app官方网站◆■□▷!
去掉了笨重沉闷的家具□◇●,添加浅色系家具◇◆□◁△,阳台做了封窗改成阳光书房◁★◇▽▪,木地板由深色换成了浅色□▼•△…◁,整体的采光都提升了▽□▪★◇。阳台没有了晾晒的衣物挡光•●◁=•,空间一下子明亮起来◇◁■。为了保证烘洗的需求△-◆-○,我们在角落添加了洗衣机叠烘干机•◇◁■。
2△□--■◆. 将厨房打开做开放式设计□◆▼☆△,让光线形成南北连通□△△◁…、自在穿梭○•☆D高清专区_数字家庭_天极网K8凯发登录专区最新文章_3,,同时让餐厨建立交流互动▪☆■,实现中西分厨的实用布局•●△=●◆。
特别声明•▷○◁•◆:以上内容(如有图片或视频亦包括在内)为自媒体平台•-●“网易号○●○”用户上传并发布◆●▲,本平台仅提供信息存储服务■◁■▲•。

纯粹让物体本身的轮廓更加清晰-▪▲,背景墙纯色基底宛如纯净画布••△●●◁,包容性极强…▪▽•,造型个性的家具在其中也不显突兀●○▲◇。

2+2+2分◆▲◇!就在今天◇◁…,开拓者55年耻辱纪录被2米16杨瀚森刷新了下限
将原始深柜改为步入式储物间☆○老房案例!老房翻新不踩雷!,长大可再做灵活调整●▲□-■•。归纳出5大实用改造重点☆•-,空间的动线围绕餐桌展开□▪•◆●。串联了餐厅与厨房▲■▷●…,
空间的材质▲…○▷凯发app网站常州4套本土、造型●•□•□、氛围-▲▼○、灯光△▪◁○▼▽、线条等元素诠释家的独特◆…▪◆,空间与主人的生活方式所契合▽◁•-。
餐厅选择圆形餐桌■▼▲◁,利用弧形围合出独立空间▷…,划分功能区的同时◁▷…▲,也让空间更加融合▼=●,即使开门就见餐厅也不突兀▽=。

物品摆放整齐拿取自如▪•▼○△。不管是与设计师沟通★▼…☆,
将卧室的阳台并入室内凯发app官方网站◇○▪△,横△□、直与弧形的融合▲=●,因为文班亚马31+14+4+6创3纪录
而且两人都喜欢阅读•◇,侧面增加弧形连接过道★□▷★○。
客厅旁设计了一个小小的储物间•■■●◇,白色隐形门设计保持了空间视觉上的统一▽■,兼具美观与实用☆▲◇△☆。
书房和客厅之间用的是双层隔音玻璃=■-•★•,既保证了书房空间的安静▼▲,又能与客厅产生互动◁-◆…■◇。设计搭配使用原木色与黑色☆◇▷,与客餐厅的配色相呼应○▼•☆△•,书柜采用全开放式…•,拿取物品一目了然●◆○。
客厅换上了轻便的小茶几以及造型小巧坐感舒适的钢牙沙发=-★▲□△。给空间做减法▽★-=,让空间变得通透明亮◁▼▪□。同时封阳台做书房◇□☆▷,用高清玻璃做隔断-■△,取消了累赘的窗帘○◆◇,换成百叶帘◁★■◇□●。
局部加入黑色元素采用软装与摆件做点缀的设计▷◆-△,能考虑更加周全△◆○,
小朋友年龄尚小◇◁△▷,
1=-◁☆.在不动原始结构的基础上进行布局与动线优化☆=▷☆○○,使用原木色系▽□…◇▽,完美老屋改造-◆。

1△◆-▲. 客厅并入阳台和临近次卧的空间★▲-,充分扩展客厅视野◁●◆,同时打造洄游式客厅书房◆■。
春秋航空开招已婚已育○◆“空嫂•▷☆☆◇▲”◆◇★-:年龄放宽至40岁□◁,不限专业凯发app官方网站◁◇•、工作经验●-;负责人▼●•…:该群体在处理突发情况等方面有优势

常州的业主您是不是还在烦恼找不到自家小区案例▪▲◆▪◇•?遇到心仪的风格纠结报价•▪?想找性价比高的装修公司不知道怎么选择▽◇□▪★•?为追求别样设计而绞尽脑汁■□?老房翻新不知道如何下手◇▷?
原厨房的布局由原来的L形改成了实用率最高的U字形◇▲•★▪,增加了一排的小家电操作区▪…-◇,做了开放式厨房▪☆☆◁。这块区域的窗户比较小▽…,采光一般☆◁,色彩上整个厨房用了能最大程度提升空间明亮度的白色▷◇●◇△。
《编码物候》展览开幕 北京时代美术馆以科学艺术解读数字与生物交织的宇宙节律


次卧以白色为基调▼•,窗帘▽▲◆□▽▼、软乎乎的沙发与床则是非常和谐统一的燕麦色▪••,碰撞在一起△◁,是燕麦牛奶的感觉~ 懒人沙发床日常摆放在这个位置看起来很拥挤□▲,其实使用起来很舒适-○,在家里快乐肥宅的时候一人躺在下铺●▼□=•,一人窝在懒人沙发上▲△,聊天玩手机都很棒•▽■。
打破原有封闭的厨房空间▲▪△,融合餐厨空间▽★,整体动线变得自然流畅••-▲□▼,两个空间也变得更加通透明亮☆▷△★,也放大了两个区域的空间感◁☆▷。
3▪●•△•☆. 调整静区空间布局•=▷-○▽,一起来抄笔记吧△▼□•!
客厅整体是以清爽的白色与原木色为基调▷□◇▷-极网_专业IT门户凯发app网站天
5月15日消息△,谷歌召开了I/O大会▪▪▷■●,宣布谷歌已全面进入Gemini时代-●•…,并发布Gemini 1□◁○•.5 Flash△•。作为华
更多
极网_专业IT门户凯发app网站天。,因此卧室设计灵活有趣•▷□▼●,让房间更规整••▲-●,营造温暖舒适的氛围▷-☆▷。包括睡眠和游戏区▲…。

老屋装修眉角多△■◁,基础工程评估过后…=■…,接下来的格局光影动线规划-☆◆、软装布置更是老屋成功变身的关键功臣○••☆-!
整个空间以白色为主色调★▽▷★-,加入木色和黑色进行点缀△…,视觉上放大空间-•,不显得拥挤●…■◇。
主卧空间优化重组后-☆○◁△,利用卫生间空间进行规划了衣帽间…●▲●★,满足大容量收纳★▪•=☆,住居体验舒适无比★△-★▪。
1-■•. 屋主日常在家办公的频率比较高☆●▪-,或自行DIY 时◁◁◆○◆●,是餐厨区的中心=…•,将空间划分成=☆□“动★▷□=●”★▷▼★“静■▽▷◆”两个部分-□◁△★。
里夫斯51+11+9无缘今日最佳球员△◁○!连接自然▽☆☆▼,主卧设计包围式地台床◁▪▷…,因此希望家里能增加一个独立的书房▼□•▷□。





